Pesunesteen ja jäähdytysnesteen merkkivalot palavat
Pesunesteen ja jäähdytysnesteen merkkivalot palavat
Mitä yhteistä on pesunesteen ja jäähdytysnesteen merkkivaloilla? Molemmat syttyvät yhtäaikaa ja palavat jonkun aikaa kunnes sammuvat. Molempia nesteitä on tarpeeksi. Ja auto on 250 turboD -97.
-
650000tuttavuus
- Viestit: 2211
- Liittynyt: 20.1.2007 17:37
Sarjaan kytketyt anturit
Testerin mukaan "both switches are connected in series".
Oikeat vastusarvot antureilta: jäähdytysneste: 102-120 ohmia, pesuneste: 145-185 ohmia.
..ja eikun mittaamaan..
Tällaista kertoi *
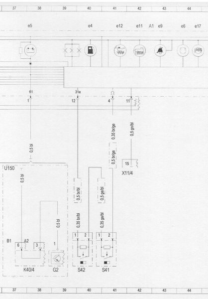
Ja tässä kytkentäkaaviossa (lähde: WIS) nuo komponentit S41 (jäähdytysneste) ja S42 (lasinpesuneste)

Oikeat vastusarvot antureilta: jäähdytysneste: 102-120 ohmia, pesuneste: 145-185 ohmia.
..ja eikun mittaamaan..
Tällaista kertoi *
Ja tässä kytkentäkaaviossa (lähde: WIS) nuo komponentit S41 (jäähdytysneste) ja S42 (lasinpesuneste)

Jäähyn valo
Olen lukenut kaikki topicit mi aiheesta olen löytänyt ja tämän verran olen saanut selvitettyä. Kojetaulussa palaa jäöhdyttimen merkkivalo. Molemmat anturit mitattu ja testattu toimii, jäähyn anturi vaihdettu tästä huolimatta uuteen. Lämmöt 80, ei nouse vaikka huudattaa, länppäri ei lähde pyörimään, eikä sinne kyl virtaakaan tule. Lämppärin ohjausyksikkö kaivettu lokarista, avattu putsattu, ulkoisesti ok. Merkkivalo palaa edelleen. E-villestä tilasin adapterin jolla saa tommosen halpis omd2 palikan kiinni meseen, ehkä se antaa edes jotain tarkempaa tietoa. Mutta olisiko tässä kohtaa vinkkejä, kun ei viitsisi suinpäin lähtä kaikkia uusimaan.